Beschlussvorlage - 24-23419
Grunddaten
- Betreff:
-
Planung Haltepunkt West
- Status:
- öffentlich (Vorlage freigegeben)
- Vorlageart:
- Beschlussvorlage
- Federführend:
- 66 Fachbereich Tiefbau und Verkehr
- Beteiligt:
- 0103 Referat Bezirksgeschäftsstellen; 0600 Baureferat
- Verantwortlich:
- Leuer
Beratungsfolge
| Status | Datum | Gremium | Beschluss | NA |
|---|---|---|---|---|
|
●
Erledigt
|
|
Stadtbezirksrat im Stadtbezirk 222 Südwest
|
Anhörung
|
|
|
|
28.05.2024
| |||
|
●
Erledigt
|
|
Stadtbezirksrat im Stadtbezirk 221 Weststadt
|
Anhörung
|
|
|
|
28.05.2024
| |||
|
●
Erledigt
|
|
Ausschuss für Mobilität, Tiefbau und Auftragsvergaben
|
Entscheidung
|
|
|
|
05.06.2024
|
Beschlussvorschlag
Beschluss:
- Der Konzeptidee zur verkehrlichen Erschließung des künftigen Haltepunktes West zwischen der Friedrich-Seele-Straße, Donaustraße und Marienberger Straße wird zugestimmt (Grundsatzbeschluss).
- Die Verwaltung wird beauftragt, die Konzeptidee des Haltepunktes weiterzuführen und zu konkretisieren.
Sachverhalt
Sachverhalt:
Beschlusskompetenz
Die Beschlusskompetenz des Ausschusses für Mobilität, Tiefbau und Auftragsvergaben (AMTA) ergibt sich aus § 76 Abs. 3 S. 1 NKomVG i. V. m. § 6 Nr. 2 lit. i der Hauptsatzung. Im Sinne dieser Zuständigkeitsnorm sind Zustimmungen zu Verkehrsplanungen auf den AMTA übertragen.
Anlass
Im Rahmen des Investitionsprogramms „Stationsoffensive im Großraum Braunschweig“ werden insgesamt drei Eisenbahnverkehrsstationen in Braunschweig in den nächsten Jahren reaktiviert bzw. neu gebaut, namentlich die Stationen Bienrode, Leiferde und West. Der Regionalverband Großraum Braunschweig (RGB) hat dafür mit der Deutschen Bahn Station und Service AG sowie der DB Netz AG (mittlerweile verschmolzen zu DB InfraGO, im Folgenden DB) eine Vereinbarung zur Planung der Verkehrsstationen in Braunschweig geschlossen. Für die eisenbahntechnischen Anlagen liegt die Federführung der Verfahren bei der DB, die Federführung für die Umfeldplanungen liegt bei der Stadt.
Mit DS 21-17387 wurde ein Sachstandsbericht zum Planungsstand u. a. für den Haltepunkt West zur Kenntnis gegeben. Im Rahmen einer Mehrfachbeauftragung konnten erste Ideen hinsichtlich der verkehrlichen und städtebaulichen Entwicklungsmöglichkeiten aufgezeigt werden. Die Ergebnisse zeigten in allen Entwürfen eine ähnliche verkehrliche Erschließung des Haltepunktes. Diese soll mit der vorliegenden DS als Basis für die weitere Planung beschlossen werden. Für eine potentielle hochbauliche Entwicklung sind Flächen eingeplant. Diese bedürfte umfangreicher Vorarbeiten (B-Planänderung) und ist daher nicht Bestandteil der vorliegenden verkehrlichen Konzeptidee. Auf Grundlage der Ergebnisse der Mehrfachbeauftragung wurden in 2023 in Abstimmung mit der Braunschweiger Verkehrs-GmbH (BSVG) die Anforderungen an die verkehrliche Umfeldplanung konkretisiert und die Erstellung einer Vorzugsvariante im Rahmen einer Machbarkeitsstudie beauftragt. Die Ergebnisse der Machbarkeitsstudie mit einer verkehrlichen Vorzugsvariante liegen nun vor.
Planungen der DB
Die Planungen der DB und des RGB wurden in der Umfeldplanung nachrichtlich übernommen (Stand Vorplanung) und sehen einen Außenbahnsteig am ersten (nördlichen) Gleis und einen Mittelbahnsteig zwischen dem zweiten (mittleren) Gleis und dem dritten (südlichen) Gleis vor. Zu den Planungen der DB wird es zu gegebener Zeit eine separate Drucksache geben. Die Bahnsteige werden über eine Personenüberführung erreicht.
Anforderungen für die verkehrliche Umfeldplanung
Um einen möglichst großen Teil der Bevölkerung zu einem Umstieg vom motorisierten Individualverkehr auf den Schienenpersonennahverkehr (SPNV), den öffentlichen Personennahverkehr (Bus und Stadtbahn = ÖPNV) und den Radverkehr zu bewegen, müssen Anreize geschaffen und Maßnahmen entwickelt werden, die darauf abzielen, dass der Haltepunkt attraktiv ist und von vielen genutzt wird.
Folgende verkehrliche Planungsprämissen wurden zu Grunde gelegt:
- qualitativ und quantitativ gut ausgebaute Wegeverbindungen für den Fuß- und Radverkehr mit Integration in das bestehende Wegenetz,
- ein optimiertes ÖPNV-Erschließungskonzept zur Anbindung des Haltepunktes,
- die barrierefreie Erreichbarkeit aller Mobilitätsangebote und die Möglichkeit, reibungslos zwischen den Mobilitätsangeboten zu wechseln,
- hochwertige und geschützte Fahrradabstellanlagen in direkter Bahnsteignähe in einer Größenordnung von ca. 350 Stück (entspricht einem Anteil von ca. 35 % der prognostizierten Nutzer in 2030),
- P+R-Platz mit ca. 50 Stellplätzen (entspricht einem Anteil von 5 % der prognostizierten Nutzer in 2030),
- Berücksichtigung von hochbaulichen Entwicklungspotentialen.
Ergebnisse der Machbarkeitsstudie zur Umfeldplanung Haltepunkt West
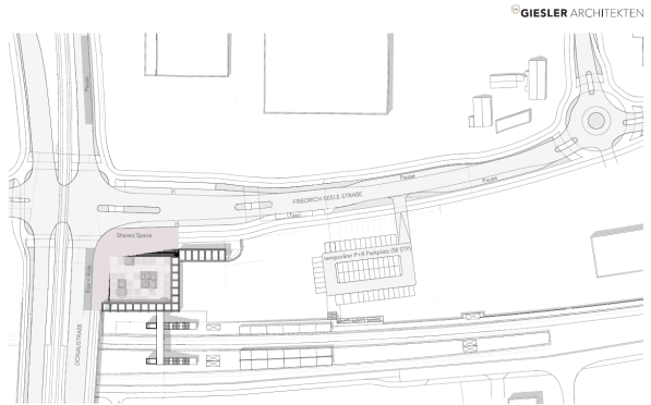
Auf Grundlage der verkehrlichen Anforderungen wurde im Rahmen der Machbarkeitsstudie folgende Konzeptidee für die verkehrliche Erschließung des Haltepunktes entwickelt (Abbildung 1).

Abbildung 1: Konzeptidee für die verkehrliche Erschließung (Giesler Architekten)
Eingangsbereich mit Platzfläche
Als wesentliches Element ist in der Konzeptidee die Herstellung einer Platzfläche auf Höhe des Knotenpunktes Donaustraße/Friedrich-Seele-Straße als zentrales Element des künftigen Haltepunktes vorgesehen. Dieses gewährleistet eine kurze, geradlinige und barrierefreie Verbindung zwischen dem SPNV und dem ÖPNV. Dadurch sind sowohl die vorhandenen Stadtbahnhaltestellen in der Donaustraße als auch die neu geplanten Bushaltestellen in der Friedrich-Seele-Straße von der Personenüberführung der DB (Hauptzugang des Haltepunktes) aus sicht- und erreichbar. Darüber hinaus ist die Platzfläche so dimensioniert, dass diese der zukünftigen Verkehrsbedeutung des Mobilitätsknotens angemessen ist und gleichzeitig durch eine attraktive Gestaltung eine gute Aufenthaltsqualität bietet.
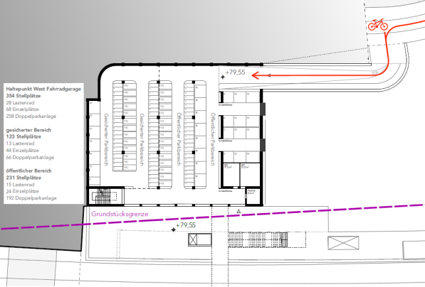
Radverkehr (Fahrradparkhaus)
Um die vorhandenen Flächen und topografischen Verhältnisse zu nutzen, ist unter der Platzfläche der Bau eines großzügig dimensionierten, hellen Fahrradparkhauses mit rund 350 Fahrradstellplätzen vorgesehen. Neben Doppelstockparken und Einzelplätzen ist auch ein Anteil von rund 10 % der Stellplätze für Lastenräder vorgesehen. Die Plätze sind zum Teil frei zugänglich und zum Teil in einem gesicherten Bereich mit Zugangskontrolle. Darüber hinaus wurden im Rahmen der Machbarkeitsstudie der Flächenbedarf für Sanitäranlagen sowie ein Zugang zur darüber liegenden Platzfläche mittels Treppe berücksichtigt (Abbildung 2).

Abbildung 2: Grundriss vom Fahrradparkhaus (Giesler Architekten)
Zur Gewährleistung der Sicherheitsaspekte wird von einem mehrstöckigen Fahrradparkhaus abgesehen und stattdessen eine einstöckige Lösung mit großzügiger Raumhöhe von über 4 m bevorzugt. Zudem ist für eine gute Einsehbarkeit insgesamt eine offene und helle Gestaltung des Fahrradparkhauses, eine Glasfront zu den Bahnsteigen, sowie großzügig dimensionierte Fahrgassen zwischen den Fahrradabstellanlagen und eine ausreichende Beleuchtung ggf. ergänzt durch Lichtschächte in der Decke mit Tageslicht, geplant (Abbildung 3).
Als Zufahrt zum Fahrradparkhaus ist eine Rampe mit einer Neigung von 6 % von der Friedrich-Seele-Straße aus vorgesehen. Um eine möglichst konfliktfreie Erreichbarkeit der Rampe aus allen Richtungen zu gewährleisten, ist, neben der Herstellung von angemessenen Radwegen beidseitig in der Friedrich-Seele-Straße zwischen Donaustraße und Neckarstraße, zusätzlich eine Querungshilfe über die Friedrich-Seele-Straße auf Höhe des Zugangs zur Rampe (für Radfahrende aus Osten kommend) vorgesehen. Im Platzbereich ist die Einrichtung eines gemeinsamen Bereiches für Radfahrende und Zu-Fuß-Gehende angedacht, um mögliche Konfliktpunkte zwischen Radfahrenden und Zu-Fuß-Gehenden zu minimieren.

Abbildung 3: Visualisierung Fahrradparkhaus, Perspektive Blickrichtung Bahnsteige (Giesler Architekten)
ÖPNV
Zur Umsetzung eines optimierten ÖPNV-Erschließungskonzepts zur Anbindung des künftigen Haltepunktes ist seitens der BSVG angedacht, zukünftig mindestens drei Buslinien an den künftigen Haltepunkt anzubinden. Ein großes Fahrgastpotenzial wurde unter anderem mit geänderten Linienverläufen zur Anbindung des künftigen Haltepunktes bei den Buslinien 445, 465/466 und 423 ermittelt. Um Fahrzeitverlängerungen durch Anpassung der Linienverläufe der o. g. Buslinien möglichst gering zu halten und auch zukünftig die betriebliche Flexibilität zu haben, sowohl Buslinien am künftigen Haltepunkt enden zu lassen, als auch eine Weiterfahrt der Linien zu ermöglichen, wurden folgende für den ÖPNV sinnvolle Verkehrsanlagen in der Konzeptidee berücksichtigt:
- Je zwei neue Bushaltestellen und je zwei Buspausenplätze je Fahrrichtung in der Friedrich-Seele-Straße sowie zwei Buspausenplätze in der Donaustraße,
- ein Kreisverkehrsplatz als Wendemöglichkeit für Busse im Bereich des Knotenpunktes Friedrich-Seele-Straße/Neckarstraße (abhängig von der Möglichkeit und Erforderlichkeit, Fläche hierfür zu erwerben)
- eine Busschleuse in der Neckarstraße, um eine Durchfahrbarkeit der Neckarstraße zur Straße Am Lehmanger mit Bussen zu ermöglichen.
Motorisierter Individualverkehr (MIV)
Zur Gewährleistung der Erreichbarkeit des künftigen Haltepunktes mit dem Pkw ist im Rahmen der Machbarkeitsstudie ein ebenerdiger P+R-Platz mit einer Größenordnung von ca. 50 Stellplätzen mit Zufahrt von der Friedrich-Seele-Straße und separaten Zugang zum Bahnsteig 1 mittels Treppe und barrierefreier Rampe vorgesehen.
Darüber hinaus sind als Längsparkstände in der Friedrich-Seele-Straße in Fahrtrichtung Osten vier Taxenplätze sowie in der Donaustraße in Fahrtrichtung Norden auf Höhe der Platzfläche ein Kiss and Ride Bereich vorgesehen (Abbildung 4).

Abbildung 4: Isometrie der verkehrlichen Erschließung (Giesler Architekten)
Finanzierung
Für die Haushaltsjahre 2024-2026 stehen Planungsmittel in Höhe von je 200.000 € zur Verfügung.
Grundsätzlich können die Verkehrsanlagen zur Erschließung des künftigen Haltepunktes durch die Landesnahverkehrsgesellschaft (LNVG) über das Förderprogramm Verknüpfungsanlagen ÖPNV/SPNV an Bahnhöfen mit bis zu 75 % der anrechenbaren Baukosten unter Berücksichtigung der Höchstsätze gefördert werden. Weitere Fördermöglichkeiten werden zu gegebener Zeit geprüft.
Erlöse aus der Entwicklung und Veräußerung der potentiellen Bauflächen werden erwartet.
Weiteres Vorgehen
Es ist vorgesehen, die Planungen zunächst bis zur Leistungsphase 2 gem. HOAI (Grundlagenermittlung und Vorplanung) fortzuführen. Auf Basis der dann vorliegenden Grundlage erfolgt ein erneuter Beschluss für die weiteren Planungsschritte.
Die Fertigstellung der städtischen Umfeldplanung ist vor der Inbetriebnahme des Haltepunktes durch die DB, die für 2029 geplant ist, avisiert.
Die östlich des Fahrradparkhauses angrenzenden städtischen Flächen könnten als potenzielle Bauflächen für eine hochbauliche Entwicklung genutzt werden (Abbildung 5). Bei Überplanung des P+R-Platzes ist dann der P+R-Bedarf in der Hochbauplanung zu integrieren. Der östliche Teil der städtischen Freifläche ist für den Amphibienschutz als Grünfläche möglichst zu erhalten.

Abbildung 5: Lageplan der verkehrlichen Erschließung (Giesler Architekten) mit potenziellen Bauflächen für eine hochbauliche Entwicklung
